RESIDENCIAL ALBATROS XIV EN MARBELLA
Bienvenido a su nueva casa, ubicada Nueva Andalucía, a escasos minutos de Puerto Banús y San Pedro Alcántara.
Descubra la fase XIV de nuestro proyecto de viviendas viviendas de nueva construcción en Nueva Andalucía, Marbella, un barrio en plena expansión que no deja de incorporar negocios y servicios a la zona.
La promoción cuenta con la garantía de Pyomar, empresa líder con 35 años de experiencia.
Diseño innovador y terminaciones de calidad
La nueva promoción en venta de Residencial Albatros XIV, continúa el esfuerzo conjunto desarrollado por Playas del Duque y el Estudio de Arquitectura de Asenjo y Asociados.
Un magnífico edificio de corte moderno y detalles arquitectónicos vanguardistas, como su forma de pico en el ángulo del edificio, con acabados de gran calidad que garantizan la satisfacción total y máximo confort de los residentes.
El edificio continúa la línea de la promoción anterior, por lo que se integra perfectamente en la visual de la zona.
LAS VIVIENDAS
Excelente ubicación con vistas panorámicas a la costa
Residencial Albatros XIV se encuentra a tan solo 5 minutos de la playa y de varios campos de golf, gozando además de excelentes vistas panorámicas de la costa y todas las comodidades de una vivienda de lujo, manteniendo un precio asequible.
MEMORIA DE CALIDADES
CIMENTACIÓN Y ESTRUCTURA:
- Cimentación realizada mediante losa maciza, con muro pantalla y muros de hormigón en sótanos y resto de estructura construida mediante pilares y forjados de hormigón armado.
CERRAMIENTO EXTERIOR:
- Los cerramientos están realizados mediante capuchina de ladrillo cerámico, en la que su cara exterior está realizada con fábrica de ladrillo cerámico, embarrado interior con mortero adhesivo hidrófugo y aislamiento térmico mediante manta de lana mineral de 50mm de espesor. Y una hoja interior realizada mediante trasdosado autoportante de tabiquería de yeso laminado, acabado en pintura lisa blanca.
- La cara exterior estará revestida mediante enfoscado de mortero cemento hidrófugo, acabado exteriormente con pintura plástica a color.
PARAMENTOS INTERIORES:
- Paramentos realizados en tabiquería seca de placas laminadas de yeso en estancias secas, y de placas laminadas hidrófugas en estancias húmedas.
- Vestíbulos, salones, pasos y dormitorios, decorados con pintura plástica lisa.
- Techos cocinas, baños y pasos donde discurran instalaciones, serán de escayola lisa acabada con pintura plástica lisa.
- Cocinas: Paramentos verticales revestidos mediante azulejos cerámicos.
- Lavaderos: Paramentos verticales revestidos mediante azulejos cerámicos a media altura.
- Baños: Paramentos verticales revestidos mediante azulejos cerámicos.
PARAMENTOS EXTERIORES
- Paramentos decorados con pintura plástica lisa.
- Barandillas realizadas mediante petos de obra con vidrio laminar empotrado.
SUELOS DE VIVIENDAS:
- Tarima flotante laminada hidrófuga rematado con rodapié sintético blanco en estancias secas.
- En baños y terrazas solería gres porcelánico.
CARPINTERÍA EXTERIOR:
- La carpintería exterior será de PVC blanco, con doble acristalamiento, colocándose persianas enrollables en huecos de dormitorios.
CARPINTERÍA INTERIOR:
- Puerta de entrada blindada de seguridad.
- Puertas de paso en DM lacado con herrajes y manivelas.
- Frentes de armarios hojas DM lacadas y revestido interior con balda en formación de maletero.
- Mobiliario de cocina (sin electrodomésticos)
SANITARIOS Y GRIFERÍAS:
- Platos de ducha de resina
- Bañeras de chapa metálica esmaltada
- Sanitarios de porcelana blanca vitrificada
- Griferías monomando cromadas.
- Mueble de lavabo con encimera sintética.
INSTALACIÓN FONTANERÍA:
- Instalación de polietileno reticulado.
- Aljibe de reserva comunitario.
- Agua caliente mediante aerotermo acumulador.
INSTALACIÓN ELÉCTRICA:
- Grado de electrificación definido en el reglamento de Baja Tensión como elevada
- Mecanismos color blanco.
TELECOMUNICACIONES
- Instalación de Televisión Digital Terrestre para Canales de TV. nacionales y locales.
- Instalación de fibra en el interior del edificio hasta acceso a vivienda, con tomas ethernet en todas las estancias.
- Video portero electrónico.
OTROS:
- Buzones individuales situados en el portal de entrada.
- Ascensores con capacidad para 6 personas, con velocidad 1 m/s y puertas con apertura telescópica.
- Portero electrónico, con placa mural en cada escalera, dotada de pulsador de llamada con microaltavoz en el exterior y mecanismo de apertura de puertas de portal mandado desde las viviendas.
- Aire acondicionado mediante conductos. Maquina interior en falso techo registrable.
- Piscina en cubierta de edificio.
- Gimnasio en planta cubierta.
- Amplias zonas comunes y terraza comunitaria en altura.
- Conserjería, zonas diáfanas y jardineras en planta baja
- Arquitectura contemporánea.
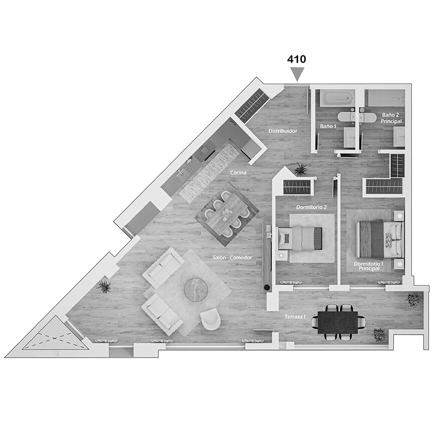
Viviendas desde 90 a 150m2
Con acabados de primera calidad y un diseño moderno.
Todas las viviendas están comunicadas por agradables zonas ajardinadas, además de gozar de acabados de primera calidad y un diseño moderno, que incluye una amplia terraza privada y plaza de garaje en el propio edificio.
Además, Residencial Albatros XIV dispone de gimnasio, zona chillout y una espectacular piscina en la cubierta del edificio con inmejorables vistas al mar y a la montaña.
El lugar ideal para disfrutar de un buen baño y relajarse con las vistas.
TU CASA AL MEJOR PRECIO
Pisos a la venta en Residencial Albatros XIV en Nueva Andalucía, Marbella, con la mejor relación calidad precio de la zona.
UBICACIÓN
En Nueva Andalucía, Marbella, una zona estratégica que se sitúa a 5 minutos en coche de San Pedro Alcántara y Puerto Banús.
La casa de tus sueños para ti y tu familia está en un barrio de reciente creación y en plena expansión, rodeado de todos los servicios que puedas necesitar: colegios, institutos, zonas deportivas, parques, tiendas… todo a la distancia de un agradable paseo.
Residencial Albatros XIV está además excelentemente conectado por carretera y transporte público.
A menos de 5 minutos en coche de tu casa encontrarás centros comerciales, Puerto Banús, playas, restaurantes, cines, ocio y entretenimiento…
RESIDENCIAL ALBATROS XV
CALLE QUEVEDO, 29660 NUEVA ANDALUCÍA, Málaga. Ver en Google Maps
GALERÍA
Imágenes del Residencial Albatros XIV en Nueva Andalucía, Marbella.
Las fotografías e imágenes incluidas en el presente web, corresponden a una simulación, dado el estado de construcción del edificio Albatros XIV










